17 ANNE Street W, Harriston, ON, N0G1Z0
17 ANNE Street WHarriston, ON N0G1Z0

Mortgage Calculator
Monthly Payment (Est.)
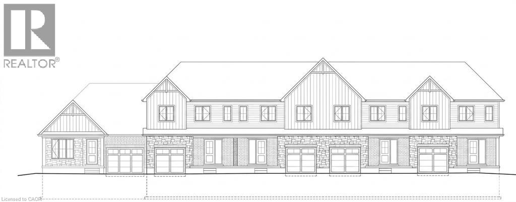
$2,532Welcome to The Crossroads townhome at Maitland Meadows. A floor plan that has quickly become a favourite for those ready to simplify, without giving anything up. If you have been thinking about downsizing or just craving the ease of single floor living, this is where it all comes together. Everything you need on the main level, thoughtfully designed so life feels easier, more comfortable, and a whole lot more manageable. This particular home takes it a step further. Set on a larger corner lot and bordering green space, it offers a sense of openness and privacy that is hard to find. Step outside and you are not staring into a neighbour’s backyard. You are enjoying space, light, and a quieter view. Inside, the layout is both functional and flexible. Two main floor bedrooms, each with ensuite privilege, create the perfect setup for guests, shared living, or simply a little extra breathing room. The heart of the home opens up into a bright, welcoming living space designed for everyday comfort and easy entertaining. And then there is the future potential. The extended roofline is already in place, making it easy to add a covered deck and create an outdoor space you will actually use. Downstairs, a full open basement is ready for whatever comes next. Rec room, hobby space, or a place for the grandkids to stay. A charming covered front porch adds that final touch. Morning coffee. Evening chats. The kind of simple moments that start to matter more. And right now, the value here is hard to ignore. The builder is also including a 6 piece appliance package, central air conditioning, and a garage door opener as part of a limited time VIP incentive. All at a price point that makes this opportunity stands out even more. This is more than a move. It is a shift toward a simpler, more enjoyable way of living. Come home to calm. Your Crossroads townhome is waiting. (id:31684)
| 22 hours ago | Listing updated with changes from the MLS® | |
| 4 days ago | Listing first seen on site |
The trademarks MLS®, Multiple Listing Service® and the associated logos are owned by The Canadian Real Estate Association (CREA) and identify the quality of services provided by real estate professionals who are members of CREA. Used under license.
The trademarks REALTOR®, REALTORS®, and the REALTOR® logo are controlled by The Canadian Real Estate Association (CREA) and identify real estate professionals who are members of CREA. These trademarks are owned or controlled by The Canadian Real Estate Association (CREA) and identify real estate professionals who are members of CREA (REALTOR®) and/or the quality of services they provide (MLS®).
This REALTOR.ca listing content is owned and licensed by REALTOR® members of The Canadian Real Estate Association.
